New Listing
$725,000
 $3,892 est/mo Sourced by Back At You

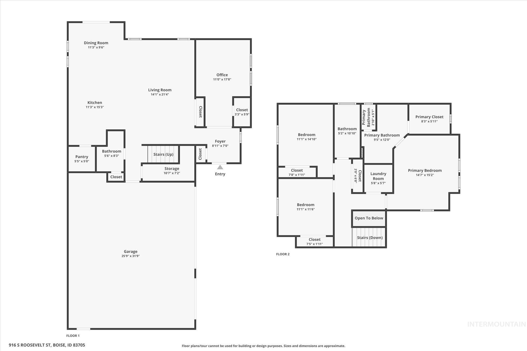
916 S Roosevelt St,Boise, ID 83705

Boise, ID 83705

Share:

Description

OPEN HOUSE Sat. 11/8 @ 12-2pm. Tucked back and off of the street, this gorgeous new construction home offers privacy & a quiet location in the heart of Boise's thriving hot spot on the Depot Bench. Uniquely offering RV parking & no HOA, with all the versatility of a modern layout, with guest bedroom & full bath on the main level situated off the great room, +3 (yes THREE) car garage. Built with heart, skill, & an eye for the little things that matter, the elevated finishes and warm hues shine from engineered hardwoods throughout the main level to the top of the line custom iron stair rail crafted by a local artisan. Every detail feels curated, with cutting-edge tilework & Restoration Hardware inspired fixtures. The sprawling kitchen offers top shelf granite, handcrafted Euro cabinetry, walk-in pantry, high end appliances & gas cooktop, & an entertainer's island overlooking the fully fenced, landscaped yard & patio. A spacious primary suite offers walk-in closet & oversized shower with signature soaring ceilings & oversized accent windows. This vibrant neighborhood is brimming with hip restaurants, parks, excellent schools, & boutiques, all within walking distance, plus the greenbelt & downtown are a 5 minute drive away. Built by Kouba Homes, an exclusively custom builder known for quality & innovation, crafting one-of-a-kind homes for over 20 years in the Treasure Valley.

Details

MLS #98966658
Listing TypeFor Sale
StyleHouse
Sub-TypeNew Construction
StatusPending
Year2025
Days On Site4
Listing Provided ByRE/MAX Capital City | Sheila Smith

Features

Bed(s)4
Bath(s)3
SQ Feet1,942
Garage3
Story(s)2
ZoningR-1C
Acreage0.15

Interior

CoolingCentral Air
Cooling Yes / NoYes
HeatingForced Air, Natural Gas
Heating Yes / NoYes
Interior FeaturesBath-Master, Den/Office, Great Room, Double Vanity, Walk-In Closet(s), Walk In Shower, Pantry, Kitchen Island, Granite Counters
AppliancesGas Water Heater, Tank Water Heater, Dishwasher, Disposal, Oven/Range Built-In, Gas Range
FlooringTile, Engineered Wood Floors
Fireplace Yes / NoNo

Exterior

RoofArchitectural Style
Lot FeaturesStandard Lot 6000-9999 SF, Garden, R.V. Parking, Auto Sprinkler System, Full Sprinkler System
Construction MaterialsFrame
FencingFull, Wood

Parking

Parking FeaturesAttached, Electric Vehicle Charging Station(s), RV Access/Parking
Garage Spaces3
Attached Garage Yes / NoYes

Utilities

UtilitiesSewer Connected

Taxes

Tax Year2024
Tax Annual Amount0
Tax Legal DescriptionSee Exhibit "A"

Area Information

StateID
CountyAda
CityBoise
Zip Code83705
AreaBoise Bench
Community NameState Sub
School DistrictBoise School District #1
Elementary SchoolMonroe
High SchoolBorah
Sourced by Back At You

Request a showing

Request a showing

Loading Form
MLS Internet Data Exchange (IDX) information is provided exclusively for consumers’ personal, non-commercial use and may not be used for any purpose other than to identify prospective properties consumers may be interested in purchasing, and that the data is deemed reliable but is not guaranteed accurate by the Intermountain Multiple Listing Service.

Contact

Learn More About This Property

StateID
CountyAda
CityBoise
Zip Code83705
AreaBoise Bench
Community NameState Sub
School DistrictBoise School District #1
Elementary SchoolMonroe
High SchoolBorah
Sourced by Back At You
Listing Updated: November 8, 2025 at 10:41:51 PM PST
Real Estate Links Our Domains